
Hned, jak tu zaparkujete a vylezete z auta, dýchne na vás klasická vesnická pohodová atmosféra. Už při příjezdu k domu přes Korunku vás zaujme výhled na rybník Velký Karlov a vy pochopíte, že jste přijeli na zajímavé místo. Vítám vás tedy u inzerátu, na rodinný dům v původním stavu, který čeká na někoho, kdo mu dá svůj čas a péči.
V domě se ještě do nedávna bydlelo, takže vše, co je potřeba, funguje. Plynový kotel zajišťuje teplo, funkční kuchyň a WC s koupelnou bylo modernizované, aby se dalo pohodlně využívat.
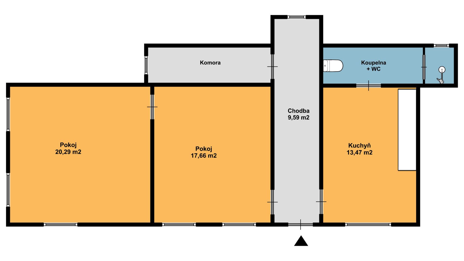
Tím, že je to dům v původním stavu, tak doporučuji zvážit možnost čerpat dotace „Oprav dům po babičce“, kde na klíčové věci jako jsou okna, fasáda získáte až milion korun předem. Vnímám, jako zajímavou možnost. Rád s tím pomůžu a doporučím zpracovatele, který vám vše vyjedná. Jak vidíte, dům je rozdělen na přední část stavení a zadní. Přední zahrnuje samotný dům + půdu nad domem. V půdorysu jsem vyznačil pouze část obytnou. Na půdu se ovšem dostaneme tak, že půjdeme do zadní části stavení, kam je vstup z venku průchodem. Tam najdeme schody nahoru. Dále v zadní části najdete dřevník, starou prádelnu, úložné prostory, bývalý kurník, garáž, septik a zmíněné studny. Je toho tady opravdu hodně. Ve videu získáte určitě lepší přehled. Pokračujte ve čtení, v dalších řádcích a fotkách se dozvíte více.

Dům je umístěn v klidné, menší ulici, která nabízí pohodlný průjezd až na zahradu, kde je možné parkovat. Do budoucna je zde možnost vybudovat parkování přímo na zahradě, například s instalací elektrické brány pro ještě větší pohodlí. Jen kousek odtud se nachází malebný rybník Velký Karlov, ideální místo pro relaxaci a procházky.

Vchodové dveře jsou nové, zatímco okna zůstávají původní, dřevěná. Při prohlídce mě mile překvapil dobrý stav okapů, což je u podobných domů určitě výhoda. Na původní taškové střeše se nachází komín, takže do budoucna máte možnost vybudovat krb nebo instalovat kamna a užívat si útulnou atmosféru domova.

Paní majitelka ještě nechala komín vyvložkovat, což je na fotce vidět. Fakturu za práce máme pro vás také k dispozici.

Dům je postaven z naprosté většiny z kamene a cihel. Na půdě nad stropem jsou dřevěná prkna. Mluvíme o hlavní části domu, kde je aktuálně možno bydlet. V přidruženém stavení, kde najdeme kůlnu, bývalý kurník, skladovací prostory a td, můžeme najít dost dřeva a dalších materiálů.

Tady se diváme do průchodu, kudy se dostanete z předního dvorku na zahradu - má uzamykatelné dveře a tudy se dostanete i na půdu, která se odsud táhne po celé délce domu. Je tu všude rozvedena původní elektřina.

Dům je napojen na obecní vodovod, ale na pozemku se nacházejí dvě studny. Jak je využijete, záleží jen na vás – důležité je, že máte tuto možnost a dá se s ní pracovat. Odpad je řešen septikem se čtyřmi základními komorami a pátou pro filtraci, který se nachází za domem. Na této fotce můžete vidět také starou garáž, která slouží především k uskladnění věcí. Garáž má navíc vlastní půdu – a jak se říká, půdy není nikdy dost! 😊

Tím, že se tu v podstatě nedávno ještě aktivně bydlelo, tak paní majitelka předělala koupelnu a instalovala nové WC. V těchto prostorách je už natahaná jak se říká nová elektřina. Ve zbytku prostor je starý měděný kabel. Takže o starost méně.

Tady vidíte fotku půdního prostoru, na který se momentálně dostanete po schodech z vedlejšího přidruženého stavení, jak už jsem zmiňoval. Toto řešení však nemusí být konečné – schody lze pohodlně vybudovat přímo z chodby. Tím se vám otevírá skvělá příležitost vytvořit na půdě další prostory, například nové pokoje. Jak přesně prostor využijete, už záleží jen na vaší fantazii a potřebách.

Nesmíme zapomenout na malý sklep, zhruba 6 m2, který najdete pod padacími dveřmi přímo v hlavní chodbě.

Co vás hned zaujme, tak jsou klenuté stropy, které myslím i při rekonstrukci dodají místo charakter a určitý nádech. Ale posuďte sami.

Bude to váš nový domov? Dům je připravený k okamžitému užívání, ale určitě si zaslouží citlivou rekonstrukci, kterou můžete realizovat postupně a podle svých představ. Doporučuji využít dotaci "Oprav dům po babičce" – s jejím vyřízením vám rád pomůžu. Spolupracuji s vynikajícím odborníkem na tuto problematiku. Těším se na vás na prohlídkách!

